Однокомнатная квартира 37,50 м2 по ул. проспект Сиверса 28 за 3850000 руб.

Однокомнатная квартира по ул. проспект Сиверса, 28 в Ростове-на-Дону
Цена 3 850 000 р. (102 667 р./м2)
Подать заявку на ипотеку
Район Ленинский
Адрес проспект Сиверса, 28
Этаж 19/21
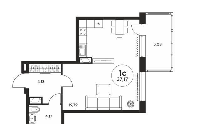
Площадь общая 37,5 м2, жилая 18 м2, кухни 10 м2
Кол-во комнат Однокомнатная
Продаю квартиру на предпоследнем этаже, в ЖК Гвардейский 3Отличные видовые характеристики. Вид на юг, на Сиверса, на Дон, левый берег дона. Планировка свободная, возможно сделать евро двухкомнатную квартиру с учетом того, что в квартире 2 окна и балкон.Центр города. удобная транспортная развязка в любой район города или Гребной канал, Ростов Арена, Мегамаг 3 минуты. Огороженная территория, предусмотрено видеонаблюдение, посты охраны и консьержи.В пешей доступности школы, садики, торговые центры. Прямо под домом остановка общественного транспорта.Сдача дома в начале 2022 года, проходят завершающие работы.
Описание дома
Этажность дома 21
Объявление № 13317251
Дата подачи:
23 февраля 2022 г. 0:53
Дата обновления:
23 февраля 2022 г. 0:00
Просмотров 98 Хотите продать быстрее?

Продавец
Агентство недвижимости:
Евгения
email: 9896217629@mail.ru
Показать номер телефона
Пожаловаться
Комментарии:
Добавить